10.09.2023 Zum Thema Windkraftanlagen Hier eine kurze Darstellung zum Thema Windkraftanlagen. Mehr dazu
16.05.2023 Danke an unsere Wählerinnen und Wähler! Die FDP erreicht in Heikendorf 13,4% (+ 3,8%) Mehr dazu
20.03.2023 Hier finden Sie unsere Kandidatinnen und Kandidaten zur Kommunalwahl Alle Wahlkreise, alle Namen und unsere Liste findet man hier Mehr dazu
09.02.2023 FDP Heikendorf wählt ihre Kandidatinnen und Kandidaten zur Kommunalwahl Die FDP Heikendorf wählte am 8.2.2023 ihre Kandidatinnen und Kandidaten zur Kommunalwahl Mehr dazu
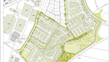
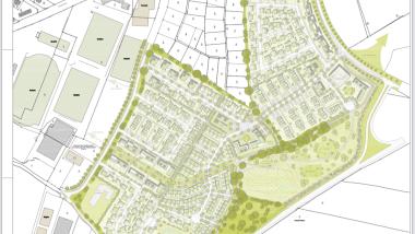
08.02.2023 Zum Krischansbarg Gemeinsam mit Grünen und UWH haben wir einen Antrag zum Planungsgebiet Krischansbarg gestellt. Mehr dazu
22.01.2023 Strand und Strandkörbe nicht privatisieren! Strand und Strandkorbvermietung werden privatisiert. Die FDP hat sich als einzige Partei dagegen ausgesprochen. Mehr dazu
14.11.2022 Zur Planung Krischansbarg Das Thema Krischansbarg ist noch lange nicht durchdiskutiert. Wir stehen den derzeitigen Planungen sehr kritisch gegenüber. Mehr dazu
01.04.2022 Heinrich Heine Gymnasium bekommt Top-Priorität bei Baumaßnahmen! Im Kreistag Plön wurde gegen die Stimmen von SPD und Grünen beschlossen, der Heinrich-Heine Schule die höchste Priorität bei Baumaßnahmen des Kreises zu geben. Mehr dazu